Дипломные работы: проект ПГС Социально-бытовые здания

Проект №1-329 "6-ти этажное административное здание с подземной автостоянкой"

Проект №1-329 "6-ти этажное административное здание с подземной автостоянкой"
Проект №1-329 "6-ти этажное административное здание с подземной автостоянкой"
Смотреть состав чертежей или абсолютно БЕСПЛАТНО скачать DEMO версию понравившегося Вам диплома Вы можете, нажав на соответствующие кнопки.
Для покупки диплома нажмите кнопку "В КОРЗИНУ", после чего Вы будете перенаправлены на страницу оформления заказа.

Цена:

5.000 руб.

КРАТКОЕ ОПИСАНИЕ

«Многоэтажное административное здание с автостоянкой в городе Москва» - готовый диплом по специальности ПГС. Состоящий из 104 листов пояснительной записки в программе «Word» и 16 листов чертежей в программе «AutoCad» (ФАСАД ТОЛЬКО В ФОРМАТЕ «JPG»).

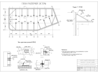
Здание имеет подземный этаж. Площадь всего здания 4416.8 кв.м, офисных помещений 3791.3 кв.м, подземного этажа с автостоянкой 625,5 кв.м. Строительный объем здания —15458,8 куб.м.
Подземная автостоянка рассчитана на размещение 14 автомобилей. Высота подземного гаража 3,4 м. Оборудована вентиляционной камерой, насосной станцией пожаротушения и подсобными помещениями.

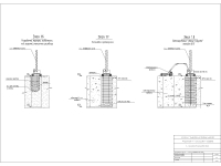
Конструктивная схема представляет собой внутренний каркас с ядром жесткости. Монолитная фундаментная плита запроектирована размерами 41 х 18 м, толщиной 500 мм и банкетками 300 мм под колонны из бетона класса В25 по бетонной подготовке толщиной 80 мм.

В проекте расчеты выполнены вручную.

СОДЕРЖАНИЕ ПОЯСНИТЕЛЬНОЙ ЗАПИСКИ
СКИДКИ И БОНУСЫ!
- При покупке 2-х дипломных работ 10% СКИДКА, при покупке 3-х дипломных работ 15% СКИДКА

- При покупке 5 дипломных работ (не обязательно единовременно) - 6 диплом В ПОДАРОК! так же специальные предложения на следующие покупки

- При покупки диплома в РАССРОЧКУ, какая либо переплата отсутствует

- При двойной оплате - УБЕРЕМ ПРОЕКТ С САЙТА до 30.06.2026г.

- При покупке дипломной работы, Вам будет предоставляться дополнительный материал из других дипломов, представленных на сайте - совершенно БЕСПЛАТНО!

О ДИПЛОМНЫХ ПРОЕКТАХ
Дипломные проекты ПГС, ГСХ и ЭиУН в среднем состоят из 12 листов графической части и 150 листов пояснительной записки

Все дипломы, представленные на сайте, выполнены в электронном виде на инженерном уровне:
пояснительная записка представлена программах MS Word, MS Exel
графическая часть - в программах AutoCAD (dwg), Компас (cdw, frw)
При необходимости мы переведем чертежи проекта AutoCAD (dwg) в Компас (cdw, frw) или другой графический редактор

Для утверждения в своём ВУЗе Вы прямо сейчас и абсолютно БЕСПЛАТНО можете скачать DEMO-версию понравившегося Вам диплома в программе AutoCAD (dwg)

Выберете подходящий проект и мы проверим его БЕСПЛАТНО в системе АНТИПЛАГИАТ

Список дипломных работ постоянно пополняется новыми проектами
АКТУАЛЬНЫЕ ВОПРОСЫ
1. ГАРАНТИИ?
Все представленные дипломы у нас в наличии! Не верите? Только мы БЕСПЛАТНО можем прислать часть диплома любого проекта!

2. ПОЧЕМУ ТАК ДЕШЕВО?

- Мы не разрабатываем проекты по Вашим требованиям, мы продаем уже ГОТОВЫЕ дипломные ПРОЕКТЫ

3. ВРЕМЯ ПОЛУЧЕНИЯ ПОСЛЕ ОПЛАТЫ?

- Диплом будет направлен через 5 МИНУТ после оплаты

4. ПРОЙДЕТ АНТИПЛАГИАТ?

- Оформите заказ, напишите в примечании «Необходимо проверить на антиплагиат» наши специалисты вам НАПРАВЯТ ОТЧЕТ о проверке
Заказать звонок

Товар добавлен в корзину



При покупке 2-х проектов - СКИДКА 10%

При покупке 3-х и более проектов - СКИДКА 15%

В корзину Продолжить покупки