Дипломные работы: проект ПГС Социально-бытовые здания

Проект №1-327 "Офисное здание с подземной автостоянкой в г. Москва"

Проект №1-327 "Офисное здание с подземной автостоянкой в г. Москва"
Проект №1-327 "Офисное здание с подземной автостоянкой в г. Москва"
Смотреть состав чертежей или абсолютно БЕСПЛАТНО скачать DEMO версию понравившегося Вам диплома Вы можете, нажав на соответствующие кнопки.
Для покупки диплома нажмите кнопку "В КОРЗИНУ", после чего Вы будете перенаправлены на страницу оформления заказа.

Цена:

5.000 руб.

КРАТКОЕ ОПИСАНИЕ

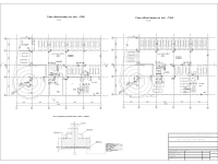
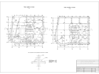
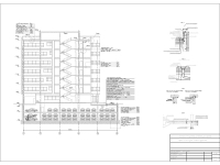
Дипломный проект по специальности ПГС (Промышленное и гражданское строительство) на тему «Офисное здание с автостоянкой в городе Москва».

Проектируемое здание представляет собой 7-и этажный объем, где на всех этажах размещены административные помещения. Общая площадь надземной части - 5625.0 кв.м. В подземной части здания запроектирована 2-уровневая автостоянка на 60 м. В 3-х этажной подземной части размещена автостоянка. Размеры проектируемого объекта в осях: надземная часть - 30.0 м х 25.5 м, подземная - 38.1 м х 25.5 м. Максимальная отметка 27.2 м от уровня земли. Высота наземных этажей: первого – 3.9 м, остальных - 3.6 м, высота подземных – 3.9 м и 3.6 м. Отделка фасадов – навесные панели из алюкобонда, керамогранита. Цоколь облицовывается керамогранитом. Витражи – в алюминиевых профилях.

Форма плиты фундаментной плиты сплошная, немного вытянутая, почти квадратная, имеет закругление в районе осей 1,А повторяющее конструкцию пандуса расположенного в подземной части здания.

Расчеты были выполнены вручную и с помощью программного комплекса «SCAD». В технологической части находится технологическая карта на возведение фундаментной плиты.

В дипломе содержатся: 15 листов чертежей в программе «AutoCad» и 157 листов пояснительной записки в программе «Word».

СОДЕРЖАНИЕ ПОЯСНИТЕЛЬНОЙ ЗАПИСКИ
СКИДКИ И БОНУСЫ!
- При покупке 2-х дипломных работ 10% СКИДКА, при покупке 3-х дипломных работ 15% СКИДКА

- При покупке 5 дипломных работ (не обязательно единовременно) - 6 диплом В ПОДАРОК! так же специальные предложения на следующие покупки

- При покупки диплома в РАССРОЧКУ, какая либо переплата отсутствует

- При двойной оплате - УБЕРЕМ ПРОЕКТ С САЙТА до 30.06.2026г.

- При покупке дипломной работы, Вам будет предоставляться дополнительный материал из других дипломов, представленных на сайте - совершенно БЕСПЛАТНО!

О ДИПЛОМНЫХ ПРОЕКТАХ
Дипломные проекты ПГС, ГСХ и ЭиУН в среднем состоят из 12 листов графической части и 150 листов пояснительной записки

Все дипломы, представленные на сайте, выполнены в электронном виде на инженерном уровне:
пояснительная записка представлена программах MS Word, MS Exel
графическая часть - в программах AutoCAD (dwg), Компас (cdw, frw)
При необходимости мы переведем чертежи проекта AutoCAD (dwg) в Компас (cdw, frw) или другой графический редактор

Для утверждения в своём ВУЗе Вы прямо сейчас и абсолютно БЕСПЛАТНО можете скачать DEMO-версию понравившегося Вам диплома в программе AutoCAD (dwg)

Выберете подходящий проект и мы проверим его БЕСПЛАТНО в системе АНТИПЛАГИАТ

Список дипломных работ постоянно пополняется новыми проектами
АКТУАЛЬНЫЕ ВОПРОСЫ
1. ГАРАНТИИ?
Все представленные дипломы у нас в наличии! Не верите? Только мы БЕСПЛАТНО можем прислать часть диплома любого проекта!

2. ПОЧЕМУ ТАК ДЕШЕВО?

- Мы не разрабатываем проекты по Вашим требованиям, мы продаем уже ГОТОВЫЕ дипломные ПРОЕКТЫ

3. ВРЕМЯ ПОЛУЧЕНИЯ ПОСЛЕ ОПЛАТЫ?

- Диплом будет направлен через 5 МИНУТ после оплаты

4. ПРОЙДЕТ АНТИПЛАГИАТ?

- Оформите заказ, напишите в примечании «Необходимо проверить на антиплагиат» наши специалисты вам НАПРАВЯТ ОТЧЕТ о проверке
Заказать звонок

Товар добавлен в корзину



При покупке 2-х проектов - СКИДКА 10%

При покупке 3-х и более проектов - СКИДКА 15%

В корзину Продолжить покупки